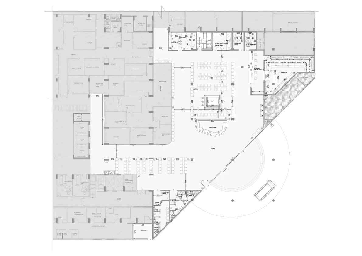
VPS KOCHI
- CATEGORY ARCHITECT + INTERIOR
- AREA 1LAKH SQFT
- LOCATION KOCHI
- YEAR 2028
- STATUS ONGOING
PREVIOUSLY ON SITE
The site was an underutilized urban parcel with limited pedestrian engagement.
Its scale and frontage required clarity in circulation and a strong architectural anchor.



CLIENT’S TAKE
A contemporary commercial development that felt open, inviting, and human-scaled.
The intent was to blend strong corporate identity with landscape, light, and public interaction.

A mixed-use commercial hub organized around a central, landscaped forecourt. Warm materials, active ground floors, and layered façades create a lively urban destination
CLIENT TESTIMONIALS
I highly recommend them for their exceptional design skills and creativity. Their ability to bring innovative ideas to life with a keen attention to detail, sets them apart. Collaborating with them for our stores in Bangalore guaranteed a visually stunning and impactful result.
Muhammed Anas CPARTNER, BEYONDBURG INC.
Working with humming tree has been a treat, they were very enthusiastic and righteous towards our project, ar. Zeba & Nahala from their team pushed themself to the limits in making our home what it is, which is a must for any creative thinkers. We enjoyed discussing the brief and brainstorming over it with humming tree a lot as it did develop a very thought-provoking idea and thus design.
Pooja RajivCO-FOUNDER, YELLOWCHALK DESIGN SOLUTIONS LLP
Afnan & arun's professionalism at humming tree is unparalleled, evident not only in their outstanding marketing acumen but also in their dedication to treating all projects with respect and equality.
NoushadPARTNER, LIMOTEX PROJECTS & INFRASTRUCTURES
We at VPS lakeshore, Kochi have been working with humming tree team for 4+ years, they have designed and shown exceptional commitment and diligence for our projects. Despite short deadlines, their creativity was not compromised. Afnan & Arun's team connection shows their leadership potential. They were a part of VPS medical centre in Calicut and currently designing the VPS Kochi hospital. In projects that they worked on with team members, their team coordinated very well. Wishing humming tree all the best in all future endeavors.
Dr. Shamseer VayalilDIRECTOR, VPS LAKESHORE HOSPITAL & RESEARCH CENTRE
Afnan & Arun have been part of the Indian Institute of Architects, Calicut Centre since a long time. We at IIA would like to express our gratitude to humming tree for their contribution in assisting & designing our very own space for architects here in Calicut, Kerala. The team's dedication and support throughout the process were instrumental. We truly appreciate their efforts and couldn't have had it any other way.
Indian Institute of Architects Calicut Centre
Collaborating with humming tree was an absolute delight. Their visionary approach and meticulous attention to detail brought our dream home to life. The team's unparalleled expertise and creativity, from concept to execution exceeded our expectations. We are beyond thrilled with the results and grateful for the exceptional architectural journey.
Ibrahim ThayathENTREPRENEUR, SUPERTECH COMPUTER TRADING L.L.C
Humming tree and their team have been amazing folks to work with. Afnan & Arun designed our home filled with art and colours in Kasaragod, Kerala. Truly appreciate on their work ethic, commitment and communication throughout. I'm so grateful for our collaboration and always look forward to seeing them and recommending. Wishing them nothing but the best!
AshrafDIRECTOR, ANJUM PERFUMES
Having had the pleasure of working alongside afnan for several years, from the committee we can confidently attest to his unwavering commitment to delivering excellence in every aspect of his work.
Managing Committee, Badar Masjid
It is great working with people who understand and add value to in idea. We have had a privilege to work with humming tree team on our home in Manali, we are amazed to find a true designer, they understands the scope, they are fast to see the idea and their delivery is of high quality.
Major Palden TakurOWNER, THE WAREHOUSE SUITES & LOFT
Working and brainstorming with humming tree has not only been a learning curve but a highly enjoyable and professionally satisfying experience. The kind of energy and enthusiasm they bring at work and on-site is contagious. Needless to say, projects with them turn out to be great pieces of livable spaces. Arun believes in wowing each of his clients and will never allow anything less than the best of design and effort. It is indeed a pleasure working with humming tree for my home. Keep it up and will always be looking forward to working with you.
Jacob Abraham PulimoottilDIRECTOR, PULLIMOOTTIL SILKS
Humming tree can outshine anybody as soon as they make up their mind for it. Being an a-list architects who designed flora resorts for us, one can be certain that their expectations from them will most definitely be exceeded.
V A HassanPARTNER, BEST LUXURY HOTELS (ASIA) PVT.LTD
It has been a pleasure collaborating with team ht, as this was their first project. When I decided to take my site in a new direction, discussing with the professionals seemed like the best approach. After months of searching, I was introduced to humming tree, which came highly recommended by trusted colleagues. From the outset, Afnan listened attentively and was always open to brainstorming ideas.
Shafi PuthiyaparambilENTREPRENEUR, PADDOCK
Humming tree has been excellent in crafting our stores and outlets since 2020 with great visual content and design sense. Their effective communication & fast-based approach for commercial projects enables smooth and timely executions of designs. Their team is highly efficient in problem-solving and can go from concept to inspecting the execution with minimal fuss and ease, making every stores/outlet of ours in South India a success.
Mohamed VasifDIRECTOR, SWISS GROUP
